Качественная и надежная баня, отвечающая всем требованиям безопасности и легкая в использовании для любого пользователя. Баня исполнена в скандинавском стиле и передаёт дух и традиции норвежских викингов в старорусском стиле
В наличии

Материал каркаса:
Ель
Внешние размеры:
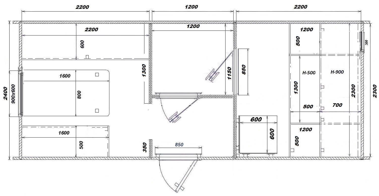
6,0 х 2,4 х 2,7 м

Вместимость:
до 10 человек
Количество секций:
3 секции

Душевая:
Есть

Материал крыши:
Профлист
750000 ₽
от 600000 ₽
Комплектация:
Пол из термо-бруса (не боится влаги, не гниет)
Печь TMF Семирамида с закрытой каменкой
Дымоход сендвич диаметром 200 мм, толщиной 1 мм
Теплоизолирующий экран топочного канала печи
Вынос топки в комнату отдыха
Ретро-проводка под ключ
Г-образный термо-полок + выдвижной
Подспинники в парной и комнате отдыха
Ящик для вещей (рундук)
Трапы во всех помещениях
Окно ПВХ 900х600 в зоне отдыха
Межкомнатные двери матовые/тонированные
Форточка в парной 30х30 см
Входная теплая дверь ПВХ 1800х700
Мебель в комнате отдыха: стол и лавки
Организация проходной душевой с ПНД поддоном



Баня "Мини Хаус 6х2,4"
В наличии

Материал:
Ель
Внешние размеры:
6,0 х 2,4 х 2,7 м

Вместимость:
до 10 человек
Количество секций:
3 секции
Стоимость:
от 600000 ₽
Скачайте каталог прямо сейчас и забронируйте подарки на 50 000 рублей
Не пропустите самые выгодные предложения, акции и скидки от нашей компании


Не пропустите самые выгодные предложения, акции и скидки от нашей компании


Лучшие материалы
Используем дерево камерной сушки. Не требует усадки

Качественная сборка
Надежная сборка обеспечит долговечную службу

Полная обработка
Обработка бани, включая защиту от влаги, грибка и плесени

Конструкции
Любые разновидности конструкции бань

Безопасность
Технически безопасные бани для пользователей и строений

Мобильность
Удобные для перемещения на другие участки

Дополняемость
Дополнительные внедрения в возможности бань

Удобство пользования
Бани просты в использовании для всех возрастов

Лучшие материалы
Используем дерево камерной сушки. Не требует усадки

Качественная сборка
Надежная сборка обеспечит долговечную службу

Полная обработка
Обработка бани, включая защиту от влаги, грибка и плесени

Конструкции
Любые разновидности конструкции бань

Безопасность
Технически безопасные бани для пользователей и строений

Мобильность
Удобные для перемещения на другие участки


Дополняемость
Дополнительные внедрения в возможности бань

Удобство пользования
Бани просты в использовании для всех возрастов




01
Заявка и консультация
Клиент оставляет заявку на сайте, наш менеджер связывается по телефону и уточняет все детали заказа
02

Планировка бани
После того как клиент определится с выбором нужной бани мы утверждаем будущий дизайн. После чего мы ждем оплаты первой части
03

Выполнение работ
Наша команда выполняет все нужные работы, подбираем материал, фурнитуру и обустраиваем баню под требования клиента
04

Доставка и установка
Осуществляем доставку до конечного адреса, указанного в заявке. Производим монтаж на участке клиента
05

Конечная оплата
После установки бани производится конечная оплата всего заказа
06

Итоги работы и гарантия
Остаемся на связи после всех этапов. Даём 2 года гарантии на установку

01
Заявка и консультация
Клиент оставляет заявку на сайте, наш менеджер связывается по телефону и уточняет все детали заказа
02

Планировка бани
После того как клиент определится с выбором нужной бани мы утверждаем будущий дизайн. После чего мы ждем оплаты первой части
03

Выполнение работ
Наша команда выполняет все нужные работы, подбираем материал, фурнитуру и обустраиваем баню под требования клиента
04

Доставка и установка
Осуществляем доставку до конечного адреса, указанного в заявке. Производим монтаж на участке клиента
05

Конечная оплата
После установки бани производится конечная оплата всего заказа
06

Итоги работы и гарантия
Остаемся на связи после всех этапов. Даём гарантию 12 месяцев на установку


ЛИСТАЙТЕ В СТОРОНУ >
Квадро
от 250 000 ₽


Бани-викинги
от 250 000 ₽


Бани-Парусы
от 250 000 ₽



Квадро-Овал
от 250 000 ₽


Бани-бочки
от 250 000 ₽


Каркасные бани
от 250 000 ₽


Банные комплексы
от 250 000 ₽




Купели и чаны
от 250 000 ₽




Мобильный телефон:

Электронная почта:
Остались вопросы?
Оставьте заявку на бесплатную консультацию, и мы ответим на ваши вопросы
Остались вопросы?
Оставьте заявку на бесплатную консультацию, и мы ответим на ваши вопросы

Мобильный телефон:

Электронная почта:




